Технические рекомендации по организации воздухообмена в квартирах жилых зданий
Р НП«АВОК» 5.2-2012
РЕКОМЕНДАЦИИ АВОК
НЕКОММЕРЧЕСКОЕ ПАРТНЕРСТВО
«Инженеры по отоплению, вентиляции,
кондиционированию воздуха, теплоснабжению
и строительной теплофизике» (НП «АВОК»)
www.abok.ru
Предисловие
1. РАЗРАБОТАНЫ творческим коллективом специалистов некоммерческого партнерства «Инженеры по отоплению, вентиляции, кондиционированию воздуха, теплоснабжению и строительной теплофизике» (НП «АВОК»):
- Ю.А. Табунщиков, доктор техн. наук (НП «АВОК») - руководитель;
- М.М. Бродач, канд. техн. наук (МАрхИ);
- A.Н. Колубков (ППФ «Александр Колубков»);
- Л.В. Иванихина, канд. техн. наук (ОАО «ЦНИИПромзданий»);
- B.А. Ионин (Москомархитектура);
- В.И. Ливчак, канд. техн. наук (НП «АВОК»);
- Е.Г. Малявина, канд. техн. наук (МГСУ);
- А.Л. Наумов, канд. техн. наук (НПО «Термэк»);
- Е.О. Шилькрот, канд. техн. наук (ОАО «ЦНИИПромзданий»).
2. УТВЕРЖДЕНЫ И ВВЕДЕНЫ В ДЕЙСТВИЕ приказом Президента НП «АВОК» от 19 марта 2012 г.
3. ВЗАМЕН ТР АВОК 4-2008.
Содержание
4. Виды и типы систем вентиляции
5. Общие технические требования
6. Требования санитарно-гигиенической и пожарной безопасности
7.2. Приточные и вытяжные устройства
8.1. Расчет системы естественной вентиляции
8.2. Расчет системы механической вытяжной вентиляции с естественным притоком воздуха
8.3. Расчет системы механической приточно-вытяжной вентиляции
Приложение Б (справочное) Кратность воздухообмена в помещениях жилых зданий
Приложение В (справочное) Примеры расчета систем вентиляции
Введение
Организованный воздухообмен (вентиляция) является основным способом обеспечения чистоты воздуха в квартирах жилых зданий. От качества и надежности работы вентиляции зависят комфортность проживания, здоровье людей, сохранность и долговечность конструкций здания.
В жилищном строительстве в СССР и в России, как правило, применялись системы естественной приточно-вытяжной вентиляции. Наружный воздух поступал в квартиры через неплотности в оконных переплетах, форточки, фрамуги или открываемые окна и удалялся через вентиляционные каналы санитарных узлов и кухонь. Применение естественной вентиляции в зданиях массового строительства обуславливалось ее простотой и невысокой стоимостью, а также практическим отсутствием необходимости ее обслуживания при существовавшей тогда герметизации наружных ограждений квартир. Недостатками естественной вентиляции являлись неустойчивый воздушный режим квартир, вызываемый значительным влиянием температуры наружного воздуха и влиянием ветра, дискомфорт от использования форточек при низких наружных температурах. Открывание форточек приводит обычно к избыточному проветриванию и охлаждению помещений, что особенно проявляется в холодный период года.
Высокая герметичность современных окон сделала практически неработоспособными системы естественной вентиляции. В квартирах ухудшилась комфортность проживания. Наблюдаются высокая влажность и низкое качество воздуха, что зачастую является причиной грибковых поражений конструкций. Попытки организовать проветривание путем открытия форточек в герметичных окнах не позволяют обеспечивать требуемый микроклимат помещений и значительно снижают эффективность использования теплоты, затраты которой на подогрев приточного воздуха в современной квартире зачастую превышают потери теплоты через наружные ограждения. Открывание форточек способствует проникновению шума через окна квартир, выходящие на улицу.
Высокие требования к качеству вентиляции привели к необходимости использования других конструктивных схем вентиляции, таких как устройство регулируемой вентиляции с естественным притоком воздуха через специальные приточные устройства, обеспечивающие нормативный воздухообмен и не позволяющие уличному шуму проникать в квартиры; устройство механической вытяжной или механической приточно-вытяжной вентиляции, в том числе с утилизацией теплоты удаляемого воздуха. Указанные схемы позволяют нормализовать воздушно-тепловой режим квартир, обеспечить требуемый воздухообмен, а также в случае осуществления регулирования воздухообмена по потребности и применения утилизации теплоты удаляемого воздуха снизить затраты теплоты на вентиляцию.
Требования федеральных законов и постановлений субъектов РФ также уделяют внимание повышению качества воздуха в помещениях.
Так, требования [1] содержат следующие положения:
Статья 10. Требования безопасных для здоровья человека условий проживания и пребывания в зданиях и сооружениях
<…>
2. Здание или сооружение должно быть спроектировано и построено таким образом, чтобы в процессе эксплуатации здания или сооружения обеспечивались безопасные условия для проживания и пребывания человека в зданиях и сооружениях по следующим показателям:
- 1) качество воздуха в производственных, жилых и иных помещениях зданий и сооружений и в рабочих зонах производственных зданий и сооружений;
- <…>
- 5) защита от шума в помещениях жилых и общественных зданий и в рабочих зонах производственных зданий и сооружений;
- 6) микроклимат помещений;
- 7) регулирование влажности на поверхности и внутри строительных конструкций;
- 8) уровень вибрации в помещениях жилых и общественных зданий и уровень технологической вибрации в рабочих зонах производственных зданий и сооружений...
- <…>
Статья 20. Требования к обеспечению качества воздуха
1. В проектной документации зданий и сооружений должно быть предусмотрено оборудование зданий и сооружений системой вентиляции. В проектной документации зданий и сооружений может быть предусмотрено оборудование помещений системой кондиционирования воздуха. Системы вентиляции и кондиционирования воздуха должны обеспечивать подачу в помещения воздуха с содержанием вредных веществ, не превышающим предельно допустимых концентраций для таких помещений или для рабочей зоны производственных помещений.
2. В проектной документации здания и сооружения с помещениями с пребыванием людей должны быть предусмотрены меры по:
- 1) ограничению проникновения в помещения пыли, влаги, вредных и неприятно пахнущих веществ из атмосферного воздуха;
- 2) обеспечению воздухообмена, достаточного для своевременного удаления вредных веществ из воздуха и поддержания химического состава воздуха в пропорциях, благоприятных для жизнедеятельности человека;
- 3) предотвращению проникновения в помещения с постоянным пребыванием людей вредных и неприятно пахнущих веществ из трубопроводов систем и устройств канализации, отопления, вентиляции, кондиционирования, из воздуховодов и технологических трубопроводов, а также выхлопных газов из встроенных автомобильных стоянок;
- 4) предотвращению проникновения почвенных газов (радона, метана) в помещения, если в процессе инженерных изысканий обнаружено их наличие на территории, на которой будут осуществляться строительство и эксплуатация здания или сооружения».
Приказ Министерства регионального развития РФ [2] в качестве минимальных требований энергетической эффективности зданий, строений, сооружений предписывает, что вводимое в эксплуатацию при строительстве, реконструкции, капитальном ремонте здание должно быть оборудовано устройствами, оптимизирующими работу вентиляционных систем (воздухопропускные устройства в окнах или стенах, автоматически обеспечивающие подачу наружного воздуха по потребности, утилизаторы теплоты удаляемого воздуха для нагрева приточного, использование рециркуляции).
Постановление Правительства Москвы [3] в качестве главных задач ставит следующие:
- внедрение при проектировании и строительстве зданий и сооружений энергоэффективных технологических и технических решений и оборудования «активного» энергосбережения, в том числе механических приточно-вытяжных систем вентиляции с утилизацией теплоты вентиляционных выбросов, теплонасосных систем теплоснабжения, систем аккумулирования тепловой энергии, эффективных отопительных приборов с регулируемой теплоотдачей, систем автоматизированного учета потребления энергоресурсов и управления микроклиматом и т.д.;
- разработка и введение в действие нормативов и регламентов холодоснабжения жилых и общественных зданий, включая требования по снижению летних пиков электрической нагрузки и регламенты оснащения системами кондиционирования как строящихся, так и эксплуатируемых жилых зданий.
Для продукции домостроительных комбинатов это постановление допускает использование регулируемой вытяжной вентиляции с механическим побуждением и с естественным притоком через вентиляционные* устройства в окнах или наружных ограждающих конструкциях.
* В настоящих технических рекомендациях вместо термина «вентиляционные устройства» используется термин «приточные устройства»
Требования Постановления Правительства Москвы [4] в перечне мероприятий по энергосбережению и повышению энергетической эффективности общего имущества собственников помещений в проектируемых, новых, капитально ремонтируемых и реконструируемых многоквартирных домах предписывают выполнение следующих мероприятий для систем вентиляции:
5. Применение авторегулируемой вытяжной вентиляции с механическим побуждением и естественным притоком через вентиляционные устройства в наружных ограждающих конструкциях.
6. Рекуперация и утилизация тепла вентиляционных выбросов, в том числе с помощью теплонасосных систем теплоснабжения.
7. Использование нетрадиционных возобновляемых источников энергии и вторичных энергетических ресурсов».
1. Область применения
1.1. Настоящие технические рекомендации распространяются на проектирование систем естественной и механической вентиляции помещений квартир вновь строящихся и реконструируемых жилых зданий и жилой части многофункциональных зданий.
1.2. Технические рекомендации разработаны в развитие СП 60.13330.2010 «Отопление, вентиляция и кондиционирование», СП 54.13330.2011 «Здания жилые многоквартирные» и с учетом требований СП 7.13130.2009 «Отопление, вентиляция и кондиционирование. Противопожарные требования».
При проектировании, строительстве и эксплуатации систем вентиляции помещений жилых зданий следует руководствоваться нормативными документами, действующими в РФ, а также положениями настоящих технических рекомендаций.
1.3. Технические рекомендации распространяются на проектирование систем вентиляции помещений квартир, в которых сопротивление воздухопроницанию окон, балконных дверей, входных дверей в квартиру, дверей и люков коммуникационных шахт соответствует требованиям СП 50.13330.2010 «Тепловая защита зданий».
2. Нормативные ссылки
В настоящих технических рекомендациях использованы ссылки на следующие нормативные документы:
- ГОСТ 12.1.003-83* ССБТ. Шум. Общие требования безопасности
- ГОСТ 30494-96 Здания жилые и общественные. Параметры микроклимата в помещениях
- СанПиН 2.1.2.2645-2010 Санитарно-эпидемиологические требования к условиям проживания в жилых зданиях и помещениях
- СН 2.2.4/2.1.8.562-96 Шум на рабочих местах, в помещениях жилых, общественных зданий и на территории жилой застройки
- СНиП 23-01-99* Строительная климатология
- СП 7.13130.2009 Отопление, вентиляция и кондиционирование. Противопожарные требования
- СП 23-103-2003 Проектирование звукоизоляции ограждающих конструкций жилых и общественных зданий
- СП 50.13330.2010 Тепловая защита зданий
- СП 51.13330.2011 Защита от шума
- СП 54.13330.2011 Здания жилые многоквартирные
- СП 60.13330.2010 Отопление, вентиляция и кондиционирование
- ГН 2.1.6.1338-2003 Предельно допустимые концентрации (ПДК) загрязняющих веществ в атмосферном воздухе населенных мест
- ГН 2.1.6.2309-2007 Ориентировочные безопасные уровни воздействия (ОБУВ) загрязняющих веществ в атмосферном воздухе населенных мест
3. Термины и определения
В настоящих технических рекомендациях применены следующие термины с соответствующими определениями:
3.1. вентиляция: Искусственно организованный обмен воздуха в помещениях для обеспечения параметров микроклимата и качества воздуха в обслуживаемой зоне помещений в пределах допустимых норм.
3.2. вентиляция естественная: Организованный обмен воздуха в помещениях под действием теплового (гравитационного) и/или ветрового давления.
3.3. вентиляция механическая (искусственная): Организованный обмен воздуха в помещениях под действием давления, создаваемого вентиляторами.
3.4. воздух наружный: Атмосферный воздух, забираемый системой вентиляции для подачи в обслуживаемое помещение.
3.5. воздух приточный: Воздух, подаваемый в помещение системой вентиляции.
3.6. воздух удаляемый: Воздух, забираемый из помещения и больше в нем не используемый.
3.7. дефлектор: Элемент системы вытяжной вентиляции, размещаемый над вытяжной шахтой.
3.8. допустимое качество воздуха в помещениях (чистота воздуха): Состав воздуха, в котором в соответствии с определением полномочных органов концентрация известных загрязняющих веществ не превышает предельно допустимых концентраций и к которому не имеют претензий более 80 % людей, подвергаемых его воздействию.
3.9. зонт: Элемент системы вытяжной вентиляции, размещаемый над вытяжной шахтой.
3.10. микроклимат помещения: Состояние внутренней среды помещения, характеризуемое следующими показателями: температурой воздуха, радиационной температурой, скоростью движения и относительной влажностью воздуха в помещении.
3.11. регулируемая вентиляция: Регулируемый воздухообмен в помещении при помощи устройств, которые его создают.
3.12. сборный канал (воздуховод): Участок воздуховода, к которому присоединяются воздуховоды из 2 или большего числа этажей.
3.13. спутник: Вертикальный участок воздуховода, изменяющий направление движения воздуха и препятствующий его перетеканию из одной квартиры в другую.
3.14. теплый чердак: Чердак, в пространство которого поступает воздух, удаляемый из помещений здания с дальнейшим удалением его наружу.
4. Виды и типы систем вентиляции
4.1. В квартирах жилых зданий применяют следующие виды систем вентиляции:
- системы естественной вентиляции с естественным притоком и удалением воздуха;
- системы вентиляции с механическим удалением и с естественным притоком воздуха;
- системы вентиляции с механическим притоком и с естественным удалением воздуха;
- системы механической приточно-вытяжной вентиляции.
Выделяют следующие типы систем вентиляции: централизованные и децентрализованные.
4.2. Тип и вид системы вентиляции рекомендуется выбирать в соответствии с настоящими техническими рекомендациями и с учетом требований технического задания на проектирование.
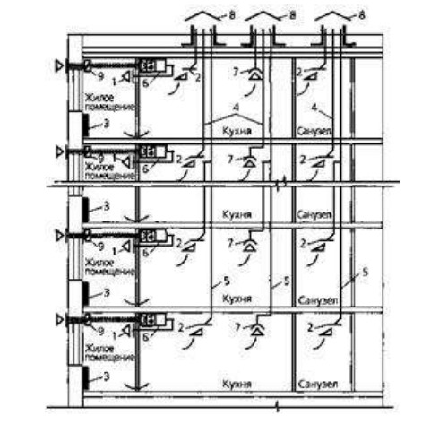
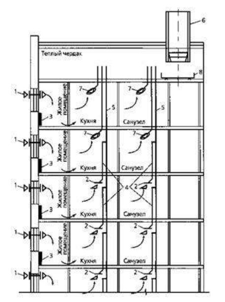
4.3. Системы естественной вентиляции выполняют с удалением воздуха через теплый чердак с единой шахтой на кровле (рисунок 1) или через раздельные каналы, выводимые на кровлю (рисунок 2).
Системы естественной вентиляции с удалением воздуха через теплый чердак не следует применять в зданиях ниже 7 этажей.
При проектировании систем вентиляции в зданиях с теплым чердаком следует устраивать 1 вытяжную шахту на секцию при условии герметичного разделения секций друг от друга.
Вытяжную шахту выполняют с соотношением сторон не более 1:2 с открытым оголовком и высотой не менее 4,5 м от верха перекрытия над последним этажом. Скорость воздуха в шахте не должна превышать 1 м/с, что обеспечивает ограничение сопротивления общих участков системы вентиляции до 1 Па и тем самым повышает устойчивость ее работы. Для сбора атмосферных осадков на полу чердака под шахтой следует размещать поддон глубиной 0,25 м. В расчетных условиях температура воздуха на чердаке должна быть не ниже 14°С.
При проектировании систем естественной вентиляции следует предусматривать мероприятия по интенсификации воздухообмена в теплый период года путем устройства механической вытяжки на обводном воздуховоде вытяжной шахты в зданиях с теплым чердаком (рисунок 3).
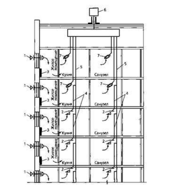
В зданиях без теплого чердака вытяжные шахты на кровле следует оборудовать дефлекторами. Допускается объединение шахт от разных систем вентиляции под одним зонтом или дефлектором (рисунок 4). Дефлектор в аэродинамическом отношении предпочтительнее зонта, устанавливаемого над блоком вентиляционных каналов, выведенных над кровлей в виде трубы.
Приток воздуха в квартиры осуществляется через приточные устройства, устанавливаемые в переплете окна или в наружной стене. Как исключение допускается использовать для притока воздуха форточки, фрамуги или открывающиеся створки окон, оборудованные фиксаторами положения, если уровень уличного шума не превышает допустимый.
Удаление воздуха из помещений квартиры осуществляется через вытяжные устройства - вытяжные решетки или устройства. Вытяжные устройства в зданиях выше 6 этажей присоединяют к вертикальному сборному каналу через спутник высотой не менее 2 м. Сопротивление спутника при расчетном расходе воздуха в нем должно составлять не менее 6-9 Па. Вертикальные сборные каналы допускается предусматривать как общими, так и раздельными для кухонь и санитарных узлов, расположенных друг под другом на этажах здания. В случае использования общего вертикального сборного канала вытяжные устройства из кухонь и санитарных узлов должны присоединяться через отдельные спутники. Для притока воздуха под дверями кухонь и санитарных узлов следует оставлять щель высотой 0,03 м или устанавливать у пола решетку живым сечением не менее 0,03 м2
Удаление воздуха из помещений квартир верхних этажей здания, как правило, осуществляется с помощью индивидуальных вытяжных вентиляторов через отдельные каналы. Число этажей, квартиры которых должны быть оборудованы индивидуальными вентиляторами, определяется расчетом. Для зданий с количеством этажей более б вентиляторами оборудуется верхняя треть здания, но не более чем 4 верхних этажа.
В системах естественной вентиляции допускается устанавливать бытовые индивидуальные вытяжные вентиляторы на вытяжных устройствах каждой квартиры в системах с отдельными вертикальными каналами.
4.4. Системы механической вытяжной вентиляции с естественным притоком воздуха проектируют с центральным (рисунок 5) или индивидуальными (рисунок 6) вытяжными вентиляторами.
Приток воздуха в квартиры осуществляется так же, как и в системах естественной вентиляции. Системы проектируют как с общими, так и раздельными сборными каналами для кухонь и санитарных узлов, расположенных друг под другом на этажах здания.
4.5. Системы механической приточной вентиляции с естественным удалением воздуха проектируют с центральным приточным вентилятором (рисунок 7) или индивидуальными приточными вентиляторами (рисунок 8).
Приток воздуха в квартиры осуществляют в жилые помещения или через обвязку внутренних блоков канальных кондиционеров при их наличии.
Системы проектируют как с общими, так и раздельными сборными каналами для кухонь и санитарных узлов, расположенных друг под другом на этажах здания.
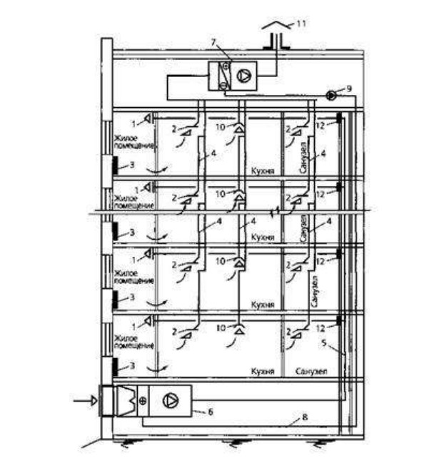
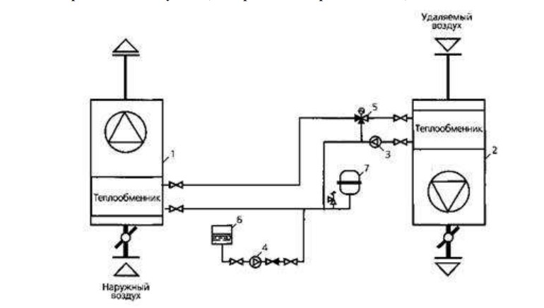
4.6. Системы механической приточно-вытяжной вентиляции должны иметь устройства утилизации теплоты удаляемого воздуха для подогрева приточного воздуха (рисунки 9, 10 и 11), а также устройства для охлаждения и увлажнения (кондиционирования) воздуха исходя из климатических условий района строительства.
В качестве устройств утилизации теплоты для систем механической приточно-вытяжной вентиляции рекомендуется применять пластинчатые теплообменники, теплоутилизаторы на тепловых трубках, системы с промежуточным теплоносителем (рисунок 12). В квартирных децентрализованных системах допускается применение регенеративных утилизаторов. Воздухораспределители для подачи приточного воздуха устанавливают в жилых помещениях, вытяжные устройства - в подсобных помещениях (кухнях, санитарных узлах, построчных, кладовых и т.п.).
Для подачи приточного воздуха в комнаты используют сеть воздуховодов или подают приточный воздух в обвязку внутренних блоков канальных кондиционеров, располагаемых в пространстве подшивного потолка квартир.
Обязательному оборудованию системами механической приточно-вытяжной вентиляции подлежит помещение кухни-нишы.
Примечание - Кухня-ниша - помещение или его часть без обеденной зоны, предназначенное для приготовления пищи.
5. Общие технические требования
5.1. Системы вентиляции жилых помещений квартир следует проектировать обеспечивая нормы воздухообмена по наружному воздуху (нормы расхода наружного воздуха) не ниже минимальных, поддерживающих в обслуживаемых помещениях необходимое качество воздуха.
Качество воздуха в помещениях должно быть обеспечено вне зависимости от принятой системы вентиляции и схемы организации воздухообмена при предельно допустимых концентрациях загрязняющих веществ в атмосферном воздухе не ниже приведенных в приложении А.
5.2 Материалы и конструктивное исполнение системы вентиляции, приемные устройства для забора наружного воздуха и устройства для удаления воздуха в системах механической приточновытяжной вентиляции должны соответствовать требованиям СП 60.13330.2010. 5.3 Системы вентиляции жилых помещений квартир рекомендуется проектировать с возможностью индивидуального регулирования величины воздухообмена. Следует применять регулируемые приточные и вытяжные устройства, работающие в том числе по контролю влажности воздуха в помещении. Допускается предусматривать возможность интенсификации воздухообмена в периоды использования помещений санитарных узлов и кухонь, устанавливая бытовые вытяжные вентиляторы в данных помещениях. Вентиляторы централизованных систем механической вентиляции должны иметь регулируемый привод и обеспечивать возможность изменения воздухообмена по потребности, создавая расчетный перепад давлений на самом удаленном регулируемом устройстве. Минимальный воздухообмен в квартире должен быть не менее 25 % от расчетного и не менее санитарной нормы вытяжки из санитарных узлов и кухонь.
5.4 Энергетическая эффективность систем вентиляции обеспечивается сокращением величины воздухообмена в зависимости от интенсивности эксплуатации отдельных помещений и квартиры в целом, использованием теплоты удаляемого воздуха для подогрева приточного (в системах механической приточно-вытяжной вентиляции).
5.5 Для проветривания квартир в теплый период года должны быть предусмотрены открывающиеся окна (створки окон), форточки или фрамуги.
5.6 Приточный воздух должен поступать в жилые помещения квартиры; удалять воздух следует из подсобных помещений.
5.7 Приточные устройства следует размещать в жилых помещениях квартир и кухнях-столовых в верхней части окна или наружной стены или над отопительным прибором, установленным под окном. При размещении приточного устройства над отопительным прибором следует обеспечить его незамерзание.
В системах с естественным притоком воздуха в качестве приточных устройств следует применять регулируемые приточные устройства; в системах с механическим притоком воздуха - регулируемые воздухораспределители.
Размеры, количество и размещение приточных устройств должны обеспечивать требуемые параметры воздуха в обслуживаемой зоне помещений при расчетных расходах наружного воздуха.
В системах с естественным притоком воздуха температура и скорость приточного воздуха при входе приточных струй в обслуживаемую зону помещений не должны превышать допустимых величин по СП 60.13330.2010 при расчетных для проектирования отопления значениях температуры наружного воздуха.
В квартирах жилых зданий, расположенных в местах с повышенным уровнем шума и запыленности наружного воздуха, следует применять устройства с шумоглушителями и воздушными фильтрами, доступными для очистки.
5.8 Вытяжные устройства следует размещать в верхней зоне подсобных помещений. В качестве вытяжных устройств следует применять регулируемые решетки и устройства.
5.9 В системах вентиляции с утилизацией теплоты удаляемого воздуха в пределах одной квартиры могут применяться регенеративные или рекуперативные утилизаторы; для централизованных систем с утилизацией теплоты - только рекуперативные, в том числе с промежуточным теплоносителем.
В системах вентиляции с механическим удалением воздуха при отсутствии приточной установки следует предусматривать мероприятия по утилизации теплоты удаляемого воздуха, используя его потенциал для других инженерных систем здания (ГВС, отопление, теплые полы и т.п.).
5.10 Системы местной вытяжной вентиляции (надплитный зонт или аналогичные устройства с удалением воздуха в атмосферу) должны иметь отдельный сборный канал для их подключения. В кухнях, оборудованных надплитным зонтом или аналогичным устройством, а также в случае использования режима увеличенной вытяжки в период приготовления пищи следует устанавливать в наружной стене уравновешивающий клапан, обеспечивающий дополнительный приток воздуха в помещение кухни.
5.11 Системы механической вентиляции должны обслуживаться службой эксплуатации здания или специализированной организацией. 5.12 При конструктивном оформлении вентиляционных камер рекомендуется:
- применять тихоходные двигатели и не завышать окружную скорость роторов вентиляторов;
- соединять всасывающие и нагнетательные отверстия вентиляторов с воздуховодами при помощи гибких вставок;
- устанавливать двигатель и вентилятор на одном валу;
- применять радиальные вентиляторы с лопатками, загнутыми назад;
- устанавливать вентиляционные агрегаты на виброизолирующем основании с устройством «плавающего пола»;
- устраивать вентиляционные камеры с вентиляторами над или под помещениями подсобного назначения.
6. Требования санитарно-гигиенической и пожарной безопасности
6.1 Материалы и конструкция вентиляционных каналов и камер должны сводить к минимуму условия, способствующие росту и распространению микроорганизмов через систему вентиляции.
6.2 Здания следует размещать в местностях, где концентрация вредных веществ в наружном (атмосферном) воздухе, используемом для вентиляции (кондиционирования), не превышает предельно допустимые концентрации в воздухе населенных мест.
Значения предельно допустимых концентраций следует принимать в соответствии с ГН 2.1.6.1338-2003 и ГН 2.1.6.2309-2007.
Значения предельно допустимых концентраций загрязняющих веществ, наиболее часто присутствующих в атмосферном воздухе, представлены в приложении А.
Если уровень загрязнения наружного воздуха превышает показатели, приведенные в приложении А, необходимо проводить его очистку.
В случаях когда существующие технологии очистки не позволяют обеспечить требуемую чистоту воздуха, допускается кратковременное (например, в часы пик на автодорогах) уменьшение количества наружного воздуха, но не более чем на 75 % от расчетного.
6.3 Расчетный воздухообмен в квартирах определяют по приложению Б, также его допускается определять в соответствии с нормами СТО НП «АВОК» 2.1-2008 (таблица 2) независимо от принятой схемы вентиляции.
6.4 Уровень шума в квартирах должен соответствовать требованиям СП 51.13330.2011, СН 2.2.4/2.1.8.562-96.
6.5 Системы вентиляции следует предусматривать отдельными для каждого пожарного отсека.
6.6 Воздуховоды из негорючих материалов следует проектировать для прокладки в пределах помещений для вентиляционного оборудования, а также на технических этажах, чердаках и в подвалах. Предел огнестойкости воздуховодов, в том числе транзитных, необходимо выбирать в соответствии с СП 7.13130.2009.
6.7 Места прохода воздуховодов через стены, перегородки и перекрытия зданий (в том числе в кожухах и шахтах) следует уплотнять негорючими материалами, обеспечивая нормируемый предел огнестойкости пересекаемого ограждения.
7. Материалы и оборудование
7.1. Каналы и воздуховоды
7.1.1 Каналы систем естественной вентиляции выполняют из тонколистовой оцинкованной стали или поэтажных унифицированных бетонных, газобетонных и тому подобных блоков. В местах соединения поэтажных блоков должна быть обеспечена герметичность.
7.1.2 Каналы и воздуховоды систем механической вытяжной вентиляции с естественным притоком воздуха и систем механической приточно-вытяжной вентиляции изготавливают, как правило, из тонколистовой оцинкованной стали.
7.2. Приточные и вытяжные устройства
7.2.1 В качестве устройств подачи воздуха в системах естественной вентиляции и механической вытяжной вентиляции с естественным притоком воздуха следует применять приточные устройства.
7.2.2 Приточные устройства должны обеспечивать изменение расхода приточного воздуха в ручном или автоматическом режимах. Изменение расхода воздуха может быть плавным или ступенчатым. В полностью закрытом положении приточные устройства должны обеспечивать минимально необходимый расход воздуха, равный 25 % от расчетного.
7.2.3 В качестве датчиков управления приточными клапанами с автоматическим регулированием расхода воздуха могут использоваться датчики перепада давления, влажности внутреннего воздуха, освещенности, присутствия людей и т.д.
7.2.4 Приточные устройства следует устанавливать в каждом жилом помещении; в каждой квартире - не менее 2-x.
7.2.5 В здании следует применять приточные устройства одного типа. Типоразмер или количество устройств в разных квартирах на разных этажах может быть различным. Количество клапанов определяют расчетом.
7.2.6 В качестве вытяжных устройств в системах естественной вентиляции рекомендуется применять регулируемые решетки; в системах механической вытяжной вентиляции с естественным притоком воздуха следует применять регулируемые решетки или вытяжные устройства.
7.2.7 Регулируемые решетки должны обеспечивать изменение расхода удаляемого воздуха в ручном режиме, вытяжные устройства - в ручном или автоматическом режимах. Изменение расхода воздуха может быть плавным или ступенчатым.
В качестве датчиков управления вытяжными клапанами с автоматическим регулированием расхода воздуха могут использоваться датчики перепада давления, влажности внутреннего воздуха, освещенности, присутствия людей и т.п.
7.2.8 В здании следует применять вытяжные устройства одного типа и типоразмера.
7.2.9 В наружных стенах подвалов, технических подполий и холодного чердака, не имеющих вытяжной вентиляции, следует предусматривать продухи общей площадью не менее 1/400 площади пола технического подполья или подвала и холодного чердака, равномерно расположенные по периметру наружных стен. Площадь одного продуха должна быть не менее 0,05 м2.
7.3. Вентиляторы
7.3.1 Индивидуальные вытяжные вентиляторы рекомендуется оборудовать обратным клапаном, предотвращающим перетекание воздуха между квартирами через сборный канал. Включение вентиляторов, устанавливаемых в санитарных узлах, возможно объединить с включением освещения или осуществлять по датчику присутствия. В этом случае выключение вентиляторов будет осуществляться автоматически, с заданным запаздыванием после выключения освещения или ухода жильца из данного помещения.
7.3.2 Центральные вытяжные вентиляторы в системах с естественным притоком воздуха должны обеспечивать переменный расход воздуха в системе. Вентиляторы следует подбирать на расчетный расход удаляемого воздуха; глубина регулирования должна составлять 100-30 %.
Поддержание расчетного расхода воздуха в системе вытяжной вентиляции происходит по сигналу датчика статического давления, установленного в нижней части сборного канала перед вентилятором.
7.3.3 Вентиляторы должны иметь резервирование, которое следует осуществлять либо установкой дополнительного вентилятора (в централизованных системах), либо наличием резервного двигателя в вентиляторном отсеке.
8. Расчет систем вентиляции
8.1. Расчет системы естественной вентиляции
8.1.1 Расчетный расход воздуха в квартире Lвент, м3/ч, принимают по приложению Б.
8.1.2 Расчетную температуру наружного воздуха tн,°C, и расчетную скорость ветра Vветр, м/с, принимают в соответствии с СП 60.13330.2010: tн.расч = 5°С; Vветр = 0 м/с.
8.1.3 Расчетное располагаемое давление Δρрасп, Па, для квартир каждого этажа определяют по формуле
Δρрасп = g (ρн - ρв) hрасч , (1)
где g - ускорение свободного падения, м/с2;
ρн и ρв - соответственно плотность наружного и внутреннего воздуха при расчетных температурах, кг/м3;
hрасч - расстояние по вертикали от центра воздухозаборного устройства до верха вытяжной шахты, м.
8.1.4 Сопротивление воздушного тракта (потери давления) системы вентиляции Δρсист, Па, определяют по формуле
Δρсист = Δρприт + Δρвыт + Δρспут + Δρкан + Δρт.чер + Δρшахт , (2)
где Δρприт - потери давления в приточных устройствах, Па;
Δρвыт - потери давления в вытяжных устройствах, Па;
Δρспут - потери давления в спутниках, Па;
Δρкан - потери давления в сборном канале, в том числе потери давления в тройнике, Па;
Δρт.чер - потери давления на теплом чердаке, Па;
Δρшахт - потери давления в вытяжной шахте, Па.
Рекомендуется принимать следующие величины скорости воздуха в элементах сети:
- скорость воздуха в спутниках Vспут = 1,0…1,5 м/с;
- скорость воздуха в сборном канале Vкан ≤ 2,0...3,0 м/с;
- скорость воздуха в вытяжной шахте Vшахт ≤ 1 м/с; Δρшахт ≈ 1 Па.
Сопротивление воздушного тракта (потери давления) системы вентиляции Δρсист, Па, не должно превышать величину располагаемого (расчетного) давления с запасом в 10 %.
8.1.5 Если сечения спутников и сборного вытяжного канала заданы, то определяют расчетные потери давления в остальных элементах системы из формулы (2).
8.1.6 Тип и типоразмер приточного устройства подбирают по его характеристикам (данные изготовителя) в зависимости от величины Δρприт.
Если величина располагаемого давления недостаточна для установки приточных устройств, например на верхних этажах, следует использовать форточки или устанавливать индивидуальные вытяжные вентиляторы с обратными клапанами.
Число этажей, на которых следует установить индивидуальные вытяжные вентиляторы, определяют расчетом.
Если установка приточного устройства обязательна по санитарно-гигиеническим требованиям, следует увеличить сечение вытяжного канала или использовать механическую вытяжную вентиляцию.
8.1.7 Расчетный расход теплоты на вентиляцию Qвент, Вт, определяют по формуле
Qвент = сpρнLвент (tн - tв) , (3)
где сp - теплоемкость воздуха; сp = 1,005 кДж/(кг·°С);
ρн - то же, что в формуле (1);
Lвент - расчетный расход воздуха в квартире, м3/ч; принимают по приложению Б;
tн и tв - соответственно температура наружного и внутреннего воздуха в квартире при расчетных для проектирования вентиляции условиях, °С.
При расчете расхода теплоты на вентиляцию расход воздуха, удаляемого надплитным зонтом, не учитывают.
8.2 Расчет системы механической вытяжной вентиляции с естественным притоком воздуха
8.2.1 Расчет проводят при расчетной скорости ветра Vветр=0м/с.
8.2.1 Скорость воздуха в каналах и вытяжных устройствах следует принимать по акустическим требованиям. До и после вентилятора в случае необходимости следует предусматривать установку шумоглушителей.
Типоразмер приточных каналов, приточных устройств и регулируемых решеток и клапанов выбирают по акустическим требованиям.
8.2.3 Вытяжной вентилятор, центральный или индивидуальный, подбирают в соответствии с данными фирмы-производителя. В системах с централизованной вытяжной вентиляцией следует устанавливать резервный вентилятор.
8.2.4 Расчетный расход теплоты на вентиляцию определяют по формуле (3).
8.3 Расчет системы механической приточно-вытяжной вентиляции
8.3.1 Расчет проводят аналогично представленному в 8.2.
8.3.2 В системах вентиляции с утилизацией теплоты удаляемого воздуха утилизатор должен быть оборудован системой нагрева приточного воздуха, когда его температура ниже 15°С.
Приложение А
(справочное)
Таблица A.1
Предельно допустимые концентрации загрязняющих веществ в воздухе населенных пунктов
| Вещество | Предельно допустимая концентрация в наружном воздухе qн.пдкмг/м3 | |
|---|---|---|
| максимальная разовая | среднесуточная | |
| Азота двуокись | 0,085 | 0,04 |
| Пыль нетоксичная | 0,5 | 0,15 |
| Свинец | 0,001 | 0,0003 |
| Сернистый ангидрид (сера диоксид) | 0,5 | 0,05 |
| Углеводороды (бензол) | 0,3 | 0,1 |
| Углерода окись | 5 | 3 |
| Фенол | 0,01 | 0,003 |
| Углекислый газ*: - населенная местность (село) - малые города - большие города | 650 800 1000 | 650 800 1000 |
| * ПДК для углекислого газа не нормируется, данная величина является справочной. | ||
Приложение Б
(справочное)
Б.1 Кратность воздухообмена в помещениях жилых зданий и одноквартирных домов жилища I категории следует принимать в соответствии с таблицей Б.1.
Таблица Б .1
| Помещения | Кратность воздухообмена или расход воздуха | |
|---|---|---|
| приточного | удаляемого | |
| Общая комната (гостиная), спальня, жилая комната общежития | - Не менее 0,35 крата при площади более 20м2·чел.; - не менее 1,0 крата при площади менее 20м2·чел.; - не менее 30 м3/(ч·чел.) | |
| Кухня квартиры и общежития с плитами: | Не менее 60 м3/ч | |
| - с электрическими | - | |
| - с газовыми: | - | |
| - двухконфорочными | Не менее 60 м3/ч | |
| - трехконфорочными | Не менее 75 м3/ч | |
| - четырехконфорочными | Не менее 90 м3/ч | |
| Кухня-ниша | Механическая приточно-вытяжная по расчету | |
| Ванная комната | - | 50 м3/ч |
| Санузел | - | 25 м3/ч |
| Совмещенный санузел | - | 75 м3/ч |
| Совмещенный санузел с индивидуальным подогревом | - | 50 м3/ч |
| Душевая | - | 5 крат |
| Гардеробная для чистки и глажения одежды | - | 1 крат |
| Вестибюль, общий коридор, передняя, лестничная клетка в жилом доме и общежитии | По заданию на проектирование | |
| Постирочная | По расчету, но не менее 4 крат | 7 крат |
| Гладильная и сушильная в общежитии | По расчету, но не менее 2 крат | 3 крата |
| Кладовые в квартирах (одноквартирных домах), хозяйственные и бельевые в общежитиях | - | 0,5 крата |
| Машинное помещение лифтов | - | По расчету, но не менее 0,5 крата |
| Мусоросборная камера | - | 1 крат (через ствол мусоропровода) |
| Сауна | - | По расчету |
| Тренажерный зал | - | 100м3/(ч·чел.) |
| Биллиардная | - | По расчету, но не менее 2 крат |
| Библиотека, кабинет | - | 0,5 крата |
| Гараж-стоянка | - | По расчету |
Б.2 В помещениях общественного назначения общежитий и специализированных квартирных жилых зданий для престарелых и семей с инвалидами кратность воздухообмена следует принимать по соответствующим нормативным документам или техническому заданию в зависимости от назначения этих помещений.
Б.3 Требования к воздухообмену по СП 54.13330.2011
Расчетные параметры воздуха в помещениях жилого здания следует принимать по СП 60.13330 и с учетом оптимальных норм ГОСТ 30494. Кратность воздухообмена в помещениях в режиме обслуживания следует принимать в соответствии с таблицей Б.2.
Таблица Б.2
| Помещение | Величина воздухообмена |
|---|---|
| Спальная, общая, детская комнаты при общей площади квартиры на одного человека менее 20 м2 | 3 м3/ч на 1 м2 жилой площади |
| Тоже, при общей площади квартиры на одного человека более 20 м2 | 30 м3/ч на одного человека, но не менее 0,35 ч-1 |
| Кладовая, бельевая, гардеробная | 0,2 ч-1 |
| Кухня с электроплитой | 60 м3/ч |
| Помещение с газоиспользующим оборудованием | 100 м3/ч |
| Помещение с теплогенераторами общей теплопроизводительностью до 50кВт: | |
| - с открытой камерой сгорания | 100 м3/ч** |
| - с закрытой камерой сгорания | 1,0 м3/ч** |
| Ванная, душевая, туалет, совмещенный санузел | 25 м3/ч |
| Машинное отделение лифта | По расчету |
| Мусоросборная камера | 1,0* |
| * Воздухообмен по кратности следует определять по общему объему квартиры. ** При установке газовой плиты воздухообмен следует увеличить на 100 м3/ч. Примечание - Кратность воздухообмена в помещениях другого назначения следует назначать по СНиП 31-06 и СП 60.13330. | |
Приложение В
(справочное)
Примеры расчета систем вентиляции
Пример В.1 - Расчет системы естественной вентиляции
Исходные данные
Секция 17-этажного жилого здания, высота этажа - 2,8 м. Квартиры категории 2 («экономические», по МГСН 3.01-2001). На каждом этаже расположены 2 однокомнатные и 2 трехкомнатные квартиры. В примере рассмотрена вертикаль однокомнатных квартир. Общая площадь квартиры - 54 м2; жилая площадь - 22 м2; в квартире проживает 2 человека.
Система вентиляции собирается из вентиляционных блоков по схеме с общим вертикальным сборным каналом и поэтажными спутниками. Спутники проходят вертикально параллельно сборному каналу и присоединяются к нему через этаж на 0,3 м ниже отверстия для вытяжного устройства. Схема системы соответствует рисунку 1.
К сборному каналу на каждом этаже присоединяется 1 квартира.
Для повышения аэродинамической устойчивости системы (за счет увеличения аэродинамического сопротивления входу воздуха в спутник) входной участок спутника выполнен в виде конфузора. Спутники присоединены к вертикальному сборному каналу через диффузор.
В каждой квартире установлено 2 вытяжных клапана и 2 спутника: 1 в кухне и 1 в совмещенном санузле. Вытяжной клапан кухни вставлен непосредственно в вентиляционный блок, а клапан санузла соединяется со спутником коробом из гипсокартона.
Сборный канал выведен на теплый чердак. В месте выхода на чердак канал накрыт бетонным оголовком, представляющим собой диффузор.
На чердак поступает воздух из всех квартир секции жилого здания (2 вертикалей однокомнатных квартир и 2 вертикалей трехкомнатных квартир).
Из теплого чердака воздух удаляется в атмосферу через утепленную вытяжную шахту (без зонта). Высота шахты равна 2,5 м над кровлей чердака (4,5 м от пола чердака).
Для притока наружного воздуха в наружных стенах установлены регулируемые приточные устройства. В однокомнатной квартире установлено 3 приточных устройства (2 в комнате и 1 на кухне).
Порядок расчета
Расчетный расход воздуха в квартире определяют по приложению Б.
Расчетный расход приточного воздуха (проживает 2 человека):
Lприт = 30 · 2 = 60м3/ч.
Расчетный расход удаляемого воздуха Lуд = 110м3/ч (в том числе из кухни Lкух = 60м3/ч и из совмещенного санузла Lc/y = 50м3/ч).
В качестве расчетного принимают больший расход воздуха:
Lрасч = Lуд = 110м3/ч.
Расчетный расход воздуха в трехкомнатных квартирах (проживает 3 человека) такой же, как в однокомнатных.
Расчетный расход воздуха теплого чердака Lрасч.т.чер = 4·17·110 = 7480м3/ч.
Расчетное располагаемое давление Δρрасп Па, для квартир каждого этажа определяют по формуле (1).
Сопротивление воздушного тракта (потери давления) системы вентиляции Δρсист, Па, находят в соответствии с 8.1.4.
Предварительно принимают скорость воздуха в спутнике Vспут = 1,0м/с и определяют площадь его поперечного сечения:

Диаметр спутника dспут = 0,146м.
Принимают для спутника диаметр dспут = 0,14м, площадь поперечного сечения fспут = 0,0154м2, скорость воздуха Vспут = 1,08м/с.
Предварительно принимают скорость воздуха в сборном канале Vкан = 2,5м/с и определяют площадь его поперечного сечения:

Принимают площадь поперечного сечения сборного канала fкан=0,192м2; сечение имеет форму прямоугольника 0,45x0,36м, соединенного с половиной круга d=0,369м; Vкан=2,7м/с.
Предварительно принимают скорость воздуха в шахте Vшахт=1,0м/с и определяют площадь ее поперечного сечения:

Принимают площадь поперечного сечения шахты fшахт=1.5x1,5=2,25м2, Vшахт=0,92м/с.
Принимают к установке приточные устройства с расходом воздуха при полном открытии клапана:

Потери давления в приточном клапане при расчетном расходе воздуха составят Δρ=6Па.
Принимают к установке регулируемые вытяжные устройства диаметром dвыт=0,13м; площадью сечения fвыт=0,0133м2; с коэффициентом местного сопротивления, отнесенным к фронтальному сечению, ξ=1,5.
Потери давления в вытяжных клапанах составят:
- в кухне:

при скорости во фронтальном сечении V=1,25м/с; - в совмещенном санузле: Δρ=0,98Па при скорости во фронтальном сечении V=1,04м/с.
Потери давления в конфузорах перед вытяжными клапанами при ξ=0,1 составят:
- в воздуховоде из кухни:

- в воздуховоде из совмещенного санузла:

Потери давления в гипсокартонном воздуховоде сечением 0,15x0,15 м, проложенном от совмещенного санузла до вентиляционного блока, составят:
Δρ = βшR l = 1,073·0,105·1,6=0,18Па
при эквивалентной шероховатости гипсокартона kш=1мм и скорости воздуха:

Потери давления в диффузорах перед входом в сборный канал при ξ=0,12 составят:
- в кухне:

- в совмещенном санузле:


Потери давления в коленах при входе воздуха в спутник и выходе из него при площади поперечного сечения колена:

ξ=1,2 составят:
- в воздуховоде из кухни:

- в воздуховоде из совмещенного санузла:

Потери давления в спутниках по длине при шероховатости kш=2мм составят:
- в спутниках из кухни:
Δρ = βшR l=1,23·0,163·2,5=0,5Па; - в спутниках из совмещенного санузла:
Δρ = βшR l=1,2·0,115·2,5=0,35Па
Проверяют равенство потерь давления в воздушном тракте от приточного клапана до сборного канала по формуле (2):
- для кухни:
Δρ=6+1,41+0,09+0,02+1,68+0,5=9,7Па; - для совмещенного санузла:
Δρ=6+0,98+0,06+0,18+0,014+1,17+0,35=8,8Па.
Для выравнивания потерь давления по обоим трактам при наладке системы необходимо прикрыть вытяжной клапан в совмещенном санузле.
Для дальнейших расчетов принимают потери давления в воздушном тракте от приточного клапана до сборного канала Δρ=9,7Па.
Общие потери давления в оголовке сборного канала в вытяжной шахте составят:
- в диффузоре:

где ξ=0,15;

- в шахте по длине:
Δρ=βшR l=1·0,011·4,5=0,05Па
при эквивалентном диаметре шахты

и расходе воздуха 7480м3/ч; - потери давления на местные сопротивления при входе воздуха в шахту и выходе из нее:

при ξвх=0,5; ξвых=1,5; Vшахт=0,92м/с. Общие потери давления в шахте составят:
Δρшахт=0,05+1,01=1,06Па.
Общие потери давления в оголовке и шахте составят:
Δρ=0,13+1,06=1,19Па.
Основные результаты дальнейших расчетов приведены в таблице В.1.
В графах таблицы В.1 представлены:
- графа 1 - расстояние по вертикали от центра воздухозаборного устройства до верха вытяжной шахты H-h, м;
- графа 2 - располагаемое естественное давление Δρрасп, Па, рассчитанное по формуле (1);
- графа 3 - расчетный расход воздуха Lpacч, м3/ч в сборном канале после тройника этажа, указанного в графе А;
- графы 4 и 5 - коэффициенты местных сопротивлений в тройниках при входе в сборный канал соответственно на проход ξп и в спутнике ξспут;
- графа 6 - скорость воздуха после тройников Vn, м/с;
- графа 7 - потери давления в тройнике на проход:

при соответствующей скорости воздуха; - графа 8 - потери давления в тройнике на спутнике:

при скорости воздуха в спутнике Vспут=1,08м/с; - графа 9 - удельные потери давления на трение на участке сборного канала от присоединения спутников указанного этажа до следующего R, Па/м;
- графа 10 - поправочный коэффициент на шероховатость сборного воздуховода βш;
- графа 11 - потери давления по длине на участке сборного воздуховода от присоединения спутников указанного этажа до следующего βшR l (эквивалентный диаметр сборного воздуховода:

- графа 12 - полные потери давления от приточного клапана рассматриваемого этажа до верха вытяжной шахты Δρ, Па. Величина этих потерь складывается из потерь на спутнике (9,7 Па), потерь на общих участках (1,19 Па), суммы потерь в тройниках на проход начиная с 17-го этажа и включая рассматриваемый, потерь в тройнике на спутнике данного этажа и суммы потерь по длине сборного канала отданного этажа до 17-го включительно;
- графа 13 - суммарные расходы воздуха в квартире на вентиляционных вытяжных решетках L, м3/ч. Расходы воздуха соответствуют режиму без наладки системы вентиляции по данным расчета.
Данные таблицы В.1 показывают:
- в квартирах на 14 - 17-м этажах потери давления в воздуховодах при проходе расчетного расхода воздуха превышают располагаемое естественное давление; на этих этажах естественная вентиляция не обеспечивает расчетный расход воздуха при расчетных условиях. Для обеспечения вентиляции квартир на 14 - 17-м этажах необходимо установить индивидуальные вытяжные вентиляторы;
- в квартирах на 1 - 13-м этажах с системой естественной вентиляции в расчетных условиях при установке принятых приточных и вытяжных клапанов и размерах шахты и спутников имеет место большая неравномерность в распределении расходов воздуха по этажам (плюс 40 % на 1-м этаже и минус 20 % на 13-м этаже);
- для уменьшения неравномерности в распределении расходов воздуха по этажам следует провести монтажную регулировку системы (например, настройкой вытяжных клапанов) либо изменить сечение шахты, уменьшив его на участке с 1-го до 7-го этажа на 30 %. В этом случае в расчетных условиях неравномерность в распределении расходов воздуха снизится до +20...-10 %.
В процессе эксплуатации системы при понижении температуры наружного воздуха и увеличении располагаемого давления проводится индивидуальная регулировка системы.
Пример В.2 - Расчет системы механической вытяжной вентиляции (централизованной) с естественным притоком воздуха
Исходные данные
Секция 17-этажного жилого здания, рассмотренная в примере В.1.
Воздуховоды системы вентиляции выполняются из стали по схеме с общим вертикальным сборным каналом и поэтажными спутниками. Спутники проходят вертикально параллельно сборному каналу и присоединяются к нему через этаж на 0,3 м ниже отверстия для решетки.
Схема системы соответствует рисунку 5.
Таблица В.1
| Этаж | H-h, м | Δρрасп, Па | Lрасч, м3/ч | ξп | ξспут | Vп, м/с | Δρп, Па | Δρспут, Па | R, Па/м | βш | βшRl | Δρ, Па | L, м3/ч |
|---|---|---|---|---|---|---|---|---|---|---|---|---|---|
| A | 1 | 2 | 3 | 4 | 5 | 6 | 7 | 8 | 9 | 10 | 11 | 12 | 13 |
| 1 | 51,4 | 32,89 | 110 | 1,60 | 1,00 | 0,12 | 0,013 | 0,70 | 0,002 | 1,01 | 0,01 | 18,46 | 157 |
| 2 | 48,6 | 31,10 | 220 | 1,00 | 1,00 | 0,25 | 0,037 | 0,70 | 0,008 | 1,04 | 0,02 | 18,44 | 149 |
| 3 | 45,8 | 29,31 | 330 | 0,75 | 1,00 | 0,38 | 0,065 | 0,70 | 0,010 | 1,07 | 0,03 | 18,38 | 141 |
| 4 | 43,0 | 27,52 | 440 | 0,44 | 1,00 | 0,50 | 0,066 | 0,70 | 0,021 | 1,10 | 0,06 | 18,29 | 134 |
| 5 | 40,2 | 25,73 | 550 | 0,36 | 0,83 | 0,63 | 0,085 | 0,58 | 0,030 | 1,12 | 0,08 | 18,04 | 128 |
| б | 37,4 | 23,94 | 660 | 0,31 | 0,75 | 0,75 | 0,105 | 0,52 | 0,039 | 1,15 | 0,11 | 17,81 | 122 |
| 7 | 34,6 | 22,14 | 770 | 0,27 | -0,46 | 0,88 | 0,125 | -0,28 | 0,055 | 1,17 | 0,16 | 16,80 | 116 |
| 8 | 31,8 | 20,35 | 880 | 0,24 | -0,67 | 1,00 | 0,144 | -0,47 | 0,068 | 1,20 | 0,20 | 16,32 | 110 |
| 9 | 29,0 | 18,56 | 990 | 0,21 | -1,09 | 1,13 | 0,161 | -0,76 | 0,082 | 1,22 | 0,24 | 15,69 | 105 |
| 10 | 26,2 | 16,77 | 1100 | 0,19 | -1,50 | 1,25 | 0,178 | -1,05 | 0,095 | 1,23 | 0,29 | 15,00 | 100 |
| 11 | 23,4 | 14,97 | 1210 | 0,17 | -2,30 | 1,38 | 0,194 | -1,61 | 0,105 | 1,24 | 0,32 | 14,18 | 96 |
| 12 | 20,6 | 13,18 | 1320 | 0,16 | -2,83 | 1,51 | 0,219 | -1,98 | 0,145 | 1,25 | 0,45 | 12,93 | 91 |
| 13 | 17,8 | 11,39 | 1430 | 0,14 | -3,63 | 1,62 | 0,220 | -2,54 | 0,157 | 1,26 | 0,49 | 11,71 | 86 |
| 14 | 15,0 | 9,60 | 1540 | 0,12 | -3,89 | 1,76 | 0,223 | -2,72 | 0,183 | 1,26 | 0,58 | 10,82 | 81 |
| 15 | 12,2 | 7,81 | 1650 | 0,11 | -4,15 | 1,89 | 0,235 | -2,98 | 0,206 | 1,27 | 0,65 | 9,76 | 75 |
| 16 | 9,4 | 6,02 | 1760 | 0,10 | -4,35 | 2,01 | 0,242 | -3,10 | 0,227 | 1,27 | 0,72 | 8,75 | 69 |
| 17 | 6,6 | 4,22 | 1870 | - | -4,56 | 2,14 | - | -3,19 | - | - | - | 7,70 | 63 |
К сборному вентиляционному каналу на каждом этаже присоединяется 1 квартира.
В каждой квартире установлено 2 регулируемых вытяжных клапана и 2 спутника: 1 в кухне и 1 в совмещенном санузле.
Спутники соединяются со сборным каналом и с вытяжным клапаном коленом. Вытяжной клапан кухни вставлен непосредственно в спутник, а клапан санузла соединяется со спутником коробом из гипсокартона. Центр отверстия регулируемого вытяжного клапана расположен на расстоянии 0,3 м от потолка.
Сборный канал выведен на верхний технический этаж, где устанавливается радиальный вентилятор с шумоглушителями до и после него. Вентилятор удаляет воздух непосредственно в атмосферу. Утепленная вытяжная шахта выполнена из стали. Высота шахты равна 1 м над кровлей чердака.
Для притока наружного воздуха в наружных стенах жилого помещения установлены регулируемые приточные устройства. В однокомнатной квартире установлено 2 клапана.
Порядок расчета
Расчетный расход воздуха тот же, что в пример В.1.
Размеры вентиляционных каналов выбирают по акустическим требованиям. Принимают для спутников диаметр dспут=0,1м, площадь поперечного сечения fспут=0,00785м2, скорость воздуха V
Принимают диаметр сборного канала на первых 4 этажах dкан1-4=0,3м (площадь поперечного сечения fкан=0,141м2, Vкан=0,9м/с); на остальных этажах dкан5-17=0,47м (fкан=0,173м2, Vкан=3,0м/с).
Принимают диаметр соединительных участков спутника и сборного канала d=0,1м. Вытяжной клапан санузла соединяется со спутником коробом сечением 0,1x0,1 м, длиной 1,6 м.
Принимают диаметр шахты dшахт=0,47м, скорость воздуха в шахте и на конечном участке сборного канала Vшахт=3,0 м/с.
Потери давления в регулируемом приточном клапане при расходе воздуха Lпр.кл=55м3/ч составит Δρ=15Па.
Потери давления в регулируемых вытяжных клапанах составят:
- в кухне: Δρ=6,76Па при расходе воздуха Lкyx=60м3/ч;
- в совмещенном санузле: Δρ=4,5Па при расходе воздуха Lс/у=50м3/ч.
Потери давления в гипсокартонном воздуховоде составят
Δρ=βшRl=1,25·0,588·1,6=1,18Па
при эквивалентной шероховатости гипсокартона kш=1мм и скорости воздуха

Потери давления в коленах при входе воздуха в спутник и выходе из него при ξ=1,2 составят:
- в воздуховоде из кухни: Δρ=6,49Па;
- в воздуховоде из совмещенного санузла: Δρ=4,5Па.
Потери давления в спутниках по длине при шероховатости kш=0,1мм составят:
- в воздуховоде из кухни: Δρ=2Па;
- в воздуховоде из совмещенного санузла: Δρ=1,47Па.
Проверяют равенство сопротивлений прохождению воздуха до слияния со сборным каналом по трактам:
- для кухни:
Δρ=15+6,76+6,49+1,68+2=31,93Па; - для совмещенного санузла:
Δρ=15+4,5+1,18+4,5+1,47=26,65 Па.
Для выравнивания потерь давления при наладке системы необходимо прикрыть вытяжной клапан в совмещенном санузле.
Для дальнейших расчетов принимают потери давления до сборного канала на каждом этаже Δρ=31,93Па.
Общие потери давления на конечном участке сборного канала, шумоглушителях и в вытяжной шахте составят:
- в круглом воздуховоде длиной 1,5 м с отводом 90°:

при ξ=0,21; V=3м/с; - в шахте при длине 2,5м с учетом сопротивления на выходе из шахты с зонтом:

при ξ=1,15; V=3м/с; - в шумоглушителях:
Δρ=20+15=35 Па.
Потери давления на общих участках составят
Δρ=1,45+6,75+35=43,2 Па.
Длина прохода на каждом этаже равна 2,8м. Основные результаты дальнейших расчетов приведены в таблице В.2.
Таблица В.2
| Этаж | H-h, м | Δρрасп, Па | Lрасч, м3/ч | ξп | ξспут | Vп, м/с | Δρп, Па | Δρспут, Па | R, Па/м | βшRl | Δρ, Па | Δρp, Па | L, м3/ч |
|---|---|---|---|---|---|---|---|---|---|---|---|---|---|
| A | 1 | 2 | 3 | 4 | 5 | 6 | 7 | 8 | 9 | 10 | 11 | 12 | 13 |
| 1 | 48,4 | 29,17 | 110 | 2,50 | 1,00 | 0,22 | 0,070 | 2,70 | 0,002 | 0,01 | 87,9 | 58,7 | 142 |
| 2 | 45,6 | 27,38 | 220 | 1,00 | 1,00 | 0,43 | 0,111 | 2,70 | 0,008 | 0,02 | 87,8 | 60,4 | 138 |
| 3 | 42,8 | 25,59 | 330 | 0,71 | 1,00 | 0,65 | 0,180 | 2,70 | 0,011 | 0,03 | 87,7 | 62,1 | 134 |
| 4 | 40,0 | 23,81 | 440 | 0,44 | 1,00 | 0,87 | 0,199 | 2,70 | 0,019 | 0,05 | 87,5 | 63,3 | 130 |
| 5 | 37,2 | 22,02 | 550 | 0,36 | 1,00 | 0,88 | 0,167 | 2,70 | 0,027 | 0,08 | 87,2 | 65,2 | 126 |
| 6 | 34,4 | 20,23 | 660 | 0,31 | 1,00 | 1,06 | 0,209 | 2,70 | 0,032 | 0,09 | 87,0 | 66,8 | 122 |
| 7 | 31,6 | 18,45 | 770 | 0,27 | 0,89 | 1,24 | 0,249 | 2,07 | 0,046 | 0,13 | 86,1 | 67,7 | 118 |
| 8 | 28,8 | 16,66 | 880 | 0,24 | 0,67 | 1,41 | 0,286 | 1,26 | 0,058 | 0,16 | 84,9 | 68,2 | 114 |
| 9 | 26,0 | 14,87 | 990 | 0,21 | 0,37 | 1,59 | 0,318 | 0,69 | 0,073 | 0,20 | 83,9 | 69,0 | 110 |
| 10 | 23,2 | 13,09 | 1100 | 0,19 | 0,15 | 1,77 | 0,357 | 0,28 | 0,089 | 0,25 | 83,3 | 70,2 | 107 |
| 11 | 20,4 | 11,30 | 1210 | 0,17 | -0,02 | 1,94 | 0,384 | -0,01 | 0,095 | 0,27 | 82,0 | 70,7 | 104 |
| 12 | 17,6 | 9,51 | 1320 | 0,16 | -0,14 | 2,12 | 0,431 | -0,26 | 0,110 | 0,31 | 81,2 | 71,7 | 101 |
| 13 | 14,8 | 7,73 | 1430 | 0,15 | -0,25 | 2,23 | 0,476 | -0,47 | 0,162 | 0,45 | 80,2 | 72,4 | 98 |
| 14 | 12,0 | 5,94 | 1540 | 0,14 | -0,33 | 2,30 | 0,448 | -0,62 | 0,190 | 0,53 | 79,1 | 73,2 | 95 |
| 15 | 9,2 | 4,16 | 1650 | 0,13 | -0,40 | 2,65 | 0,547 | -0,75 | 0,206 | 0,58 | 78,0 | 73,8 | 92 |
| 16 | 6,4 | 2,37 | 1760 | 0,12 | -0,46 | 2,83 | 0,576 | -0,86 | 0,227 | 0,64 | 76,8 | 75,0 | 89 |
| 17 | 3,6 | 0,38 | 1870 | 0,11 | -0,51 | 3,00 | 0,594 | -0,96 | 0,241 | 0,67 | 75,4 | 75,0 | 86 |
В графах таблицы В.2 представлены:
- графа 1 - расстояние по вертикали от центра воздухозаборного устройства до верха вытяжной шахты H-h, м;
- графа 2 - располагаемое естественное давление Δρрасп Па, рассчитанное по формуле (1);
- графа 3 - расчетный расход воздуха Lрасч, м3/ч, в сборном канале после тройника этажа, указанного в графе А;
- графы 4 и 5 - коэффициенты местных сопротивлений в тройниках при входе в сборный канал соответственно на проход ξп и в спутнике ξспут;
- графа 6 - скорость воздуха после тройников Vп, м/с;
- графа 7 - потери давления в тройнике на проход:

при соответствующей скорости воздуха; - графа 8 - потери давления в тройнике на спутнике:

при скорости воздуха в спутнике Vспут = 2,12 м/с; - графа 9 - удельные потери давления на трение на участке сборного канала от присоединения спутников указанного этажа до следующего R, Па/м;
- графа 10 - потери давления по длине на участке сборного канала от присоединения спутников указанного этажа до следующего βшRl;
- графа 11 - полные потери давления от приточного клапана рассматриваемого этажа до верха вытяжной шахты. Величина этих потерь складывается из потерь в спутнике (31,93 Па), потерь на общих участках (42,29 Па), суммы потерь в тройниках на проход начиная с 17-го этажа и включая рассматриваемый, потерь в тройнике на спутнике данного этажа и суммы потерь по длине сборного канала от данного этажа до 17-го включительно;
- графа 12 - расчетные потери давления за вычетом располагаемого естественного давления.
Данные графы 12 показывают, что самые большие потери давления (с учетом естественного давления) составляют потери для квартир 16-го и 17-го этажей. Для обеспечения расчетных расходов воздуха необходима монтажная регулировка клапанов, увеличивающая сопротивление воздушного тракта квартир нижележащих этажей. Вытяжной вентилятор должен быть подобран на расход воздуха 1870м3/ч и давление не менее 75 Па. Если вентилятор подбирать на давление без учета естественного давления, то в наиболее холодный зимний период воздух будет удаляться с увеличенным расходом из нижних этажей и с уменьшенным - из верхних; - графа 13 - суммарные расходы воздуха в квартире на вентиляционных вытяжных решетках.
Расходы воздуха соответствуют режиму без наладки системы вентиляции поданным расчета. Данные таблицы В.2 показывают:
- неравномерность в распределении расходов воздуха по этажам составляет плюс 30% на 1-м этаже и минус 20% на 17-м этаже;
- для уменьшения неравномерности в распределении расходов воздуха по этажам следует провести монтажную регулировку системы.
Библиография
- [1] Федеральный закон РФ от 30.12.2009 г. № 384-Ф3 - Технический регламент о безопасности зданий и сооружений.
- [2] Приказ Министерства регионального развития РФ от 28.05.2010 г. № 262 - Требования энергетической эффективности зданий, строений, сооружений.
- [3] Постановление Правительства Москвы 9.06.2009 г. № 536-ПП - О городской программе «Энергосберегающее домостроение в городе Москве на 2010-2014 годы и на перспективу до 2020 года».
- [4] Постановление Правительства Москвы от 5.10.2010 г. № 900-ПП - О повышении энергетической эффективности жилых, социальных и общественно-деловых зданий в городе Москве и внесении изменений в постановление Правительства Москвы года от 9.06.2009 г. № 536-ПП.
- [5] Стандарт организации СТО НП «АВОК» 2.1-2008 - Здания жилые и общественные. Нормы воздухообмена.