Дымовые и вентиляционные каналы газифицируемых помещений

ТИПОВЫЕ СТРОИТЕЛЬНЫЕ КОНСТРУКЦИИ, ИЗДЕЛИЯ И УЗЛЫ
СЕРИЯ 5.905-27.01

ВЫПУСК 1

ДЫМОВЫЕ И ВЕНТИЛЯЦИОННЫЕ КАНАЛЫ. РАБОЧИЕ ЧЕРТЕЖИ

ДЫМОВЫЕ И ВЕНТИЛЯЦИОННЫЕ КАНАЛЫ. РАБОЧИЕ ЧЕРТЕЖИ
Титульный лист
Содержание
Содержание (стр.1)
Содержание
Содержание (стр.2)
Содержание
Содержание (стр.3)
Содержание
Содержание (стр.4)
Пояснительная записка
Пояснительная записка. Лист 1.
Пояснительная записка
Пояснительная записка. Лист 2.
Пояснительная записка
Пояснительная записка. Лист 3.
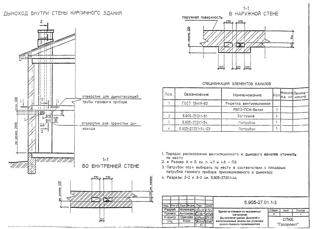
Дымовой и вентканал
Здания со стенами из несгораемых материалов. Одноэтажное здание. Дымовой и вентиляционный каналы при установке одного газового теплогенератора
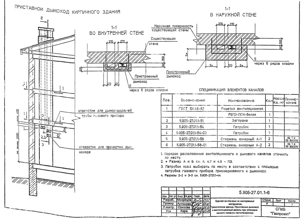
Приставные дымовой и вентканалы
Здания со стенами из несгораемых материалов. Одноэтажное здание. Приставные дымовой и вентиляционный каналы при установке одного газового теплогенератора
Дымовой и вентканал
Здания со стенами из несгораемых материалов. Двухэтажное здание. Дымовой и вентиляционный каналы при установке одного газового теплогенератора
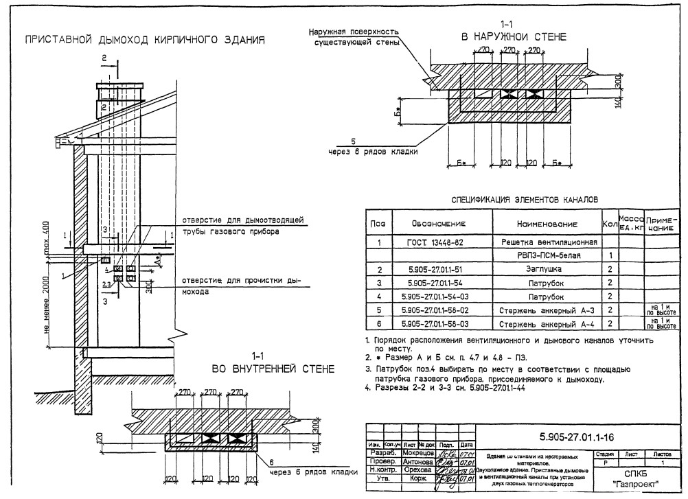
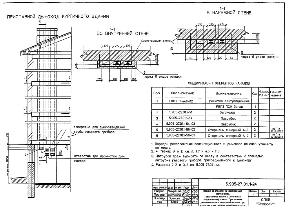
Приставные дымовой и вентканалы
Здания со стенами из несгораемых материалов. Двухэтажное здание. Приставные дымовой и вентиляционный каналы при установке одного газового теплогенератора
Дымовой и вентканал
Здания со стенами из несгораемых материалов. Трехэтажное здание. Дымовой и вентиляционный каналы при установке одного газового теплогенератора
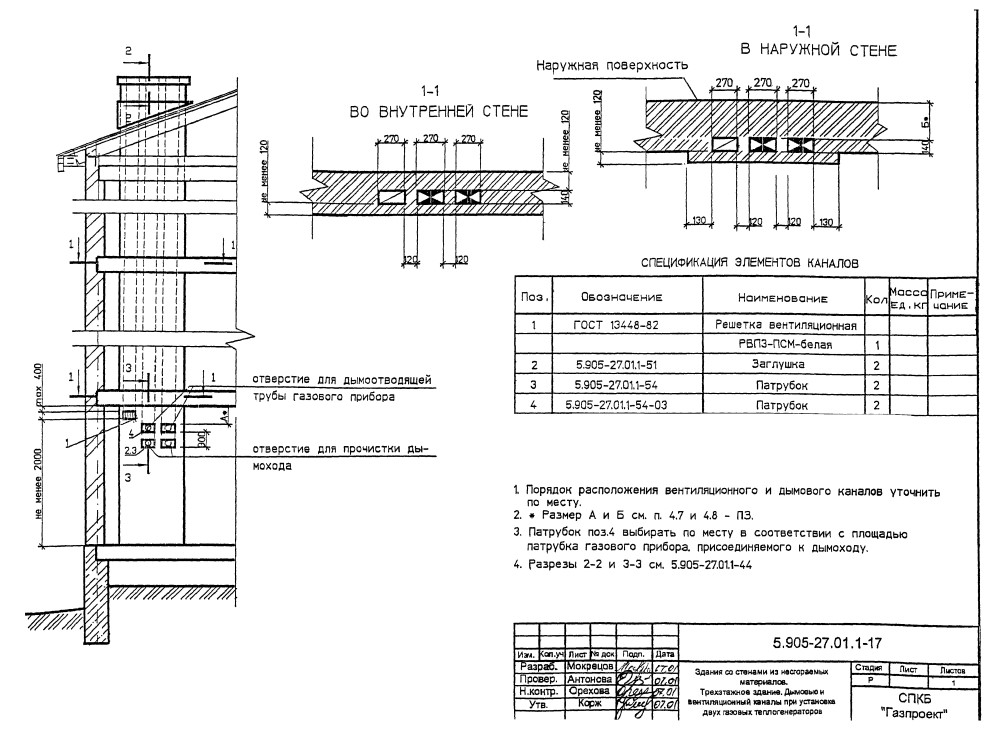
Приставные дымовой и вентканалы
Здания со стенами из несгораемых материалов. Трехэтажное здание. Приставные дымовой и вентиляционный каналы при установке одного газового теплогенератора
Дымовой и вентканал
Здания со стенами из несгораемых материалов. Одноэтажное здание с цокольным этажом. Дымовой и вентиляционный каналы при установке одного газового теплогенератора
Приставные дымовой и вентканалы
Здания со стенами из несгораемых материалов. Одноэтажное здание с цокольным этажом. Приставные дымовой и вентиляционный каналы при установке одного газового теплогенератора
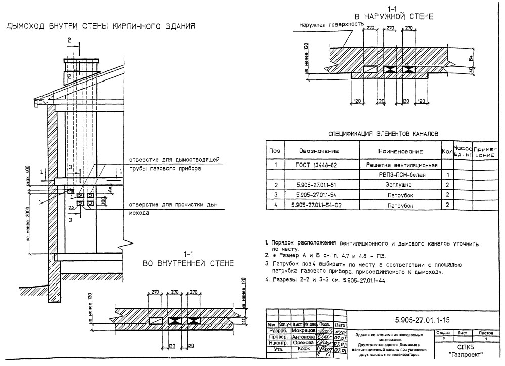
Дымовой и вентканал
Здания со стенами из несгораемых материалов. Двухэтажное здание с цокольным этажом. Дымовой и вентиляционный каналы при установке одного газового теплогенератора
Приставные дымовой и вентканалы
Здания со стенами из несгораемых материалов. Двухэтажное здание с цокольным этажом. Приставные дымовой и вентиляционный каналы при установке одного газового теплогенератора
Дымовой и вентканал
Здания со стенами из несгораемых материалов. Трехэтажное здание с цокольным этажом. Дымовой и вентиляционный каналы при установке одного газового теплогенератора
Приставные дымовой и вентканалы
Здания со стенами из несгораемых материалов. Трехэтажное здание с цокольным этажом. Приставные дымовой и вентиляционный каналы при установке одного газового теплогенератора
Дымовой и вентканал
Здания со стенами из несгораемых материалов. Одноэтажное здание. Дымовой и вентиляционный каналы при установке двух газовых теплогенераторов
Приставные дымовой и вентканалы
Здания со стенами из несгораемых материалов. Одноэтажное здание. Приставные дымовой и вентиляционный каналы при установке двух газовых теплогенераторов
Дымовой и вентканал
Здания со стенами из несгораемых материалов. Двухэтажное здание. Дымовой и вентиляционный каналы при установке двух газовых теплогенераторов
Приставные дымовой и вентканалы
Здания со стенами из несгораемых материалов. Двухэтажное здание. Приставные дымовой и вентиляционный каналы при установке двух газовых теплогенераторов
Дымовой и вентканал
Здания со стенами из несгораемых материалов. Трехэтажное здание. Дымовой и вентиляционный каналы при установке двух газовых теплогенераторов
Приставные дымовой и вентканалы
Здания со стенами из несгораемых материалов. Трехэтажное здание. Приставные дымовой и вентиляционный каналы при установке двух газовых теплогенераторов
Дымовой и вентканал
Здания со стенами из несгораемых материалов. Одноэтажное здание с цокольным этажом. Дымовой и вентиляционный каналы при установке двух газовых теплогенераторов
Приставные дымовой и вентканалы
Здания со стенами из несгораемых материалов. Одноэтажное здание с цокольным этажом. Приставные дымовой и вентиляционный каналы при установке двух газовых теплогенераторов
Дымовой и вентканал
Здания со стенами из несгораемых материалов. Двухэтажное здание с цокольным этажом. Дымовой и вентиляционный каналы при установке двух газовых теплогенераторов
Приставные дымовой и вентканалы
Здания со стенами из несгораемых материалов. Двухэтажное здание с цокольным этажом. Приставные дымовой и вентиляционный каналы при установке двух газовых теплогенераторов
Дымовой и вентканал
Здания со стенами из несгораемых материалов. Трехэтажное здание с цокольным этажом. Дымовой и вентиляционный каналы при установке двух газовых теплогенераторов
Приставные дымовой и вентканалы
Здания со стенами из несгораемых материалов. Трехэтажное здание с цокольным этажом. Приставные дымовой и вентиляционный каналы при установке двух газовых теплогенераторов
Дымовой и вентканал
Здания со стенами из несгораемых материалов. Одноэтажное здание. Дымовой и вентиляционный каналы при установке трех газовых теплогенераторов
Приставные дымовой и вентканалы
Здания со стенами из несгораемых материалов. Одноэтажное здание. Приставные дымовой и вентиляционный каналы при установке трех газовых теплогенераторов
Дымовой и вентканал
Здания со стенами из несгораемых материалов. Двухэтажное здание. Дымовой и вентиляционный каналы при установке трех газовых теплогенераторов
Приставные дымовой и вентканалы
Здания со стенами из несгораемых материалов. Двухэтажное здание. Приставные дымовой и вентиляционный каналы при установке трех газовых теплогенераторов
Дымовой и вентканал
Здания со стенами из несгораемых материалов. Трехэтажное здание. Дымовой и вентиляционный каналы при установке трех газовых теплогенераторов
Приставные дымовой и вентканалы
Здания со стенами из несгораемых материалов. Трехэтажное здание. Приставные дымовой и вентиляционный каналы при установке трех газовых теплогенераторов
Дымовой и вентканал
Здания со стенами из несгораемых материалов. Одноэтажное здание с цокольным этажом. Дымовой и вентиляционный каналы при установке трех газовых теплогенераторов
Приставные дымовой и вентканалы
Здания со стенами из несгораемых материалов. Одноэтажное здание с цокольным этажом. Приставные дымовой и вентиляционный каналы при установке трех газовых теплогенераторов
Дымовой и вентканал
Здания со стенами из несгораемых материалов. Двухэтажное здание с цокольным этажом. Дымовой и вентиляционный каналы при установке трех газовых теплогенераторов
Приставные дымовой и вентканалы
Здания со стенами из несгораемых материалов. Двухэтажное здание с цокольным этажом. Приставные дымовой и вентиляционный каналы при установке трех газовых теплогенераторов
Дымовой и вентканал
Здания со стенами из несгораемых материалов. Трехэтажное здание с цокольным этажом. Дымовой и вентиляционный каналы при установке трех газовых теплогенераторов
Приставные дымовой и вентканалы
Здания со стенами из несгораемых материалов. Трехэтажное здание с цокольным этажом. Приставные дымовой и вентиляционный каналы при установке трех газовых теплогенераторов
Дымовой и вентканал
Здания со стенами из сгораемых материалов. Одноэтажное здание. Дымовой и вентиляционный каналы при установке одного газового теплогенератора
Приставные дымовой и вентканалы
Здания со стенами из сгораемых материалов. Одноэтажное здание. Дымовой и вентиляционный каналы при установке двух газовых теплогенераторов
Узлы прохода двух каналов через сгораемое перекрытие
Узлы прохода двух каналов через сгораемое перекрытие
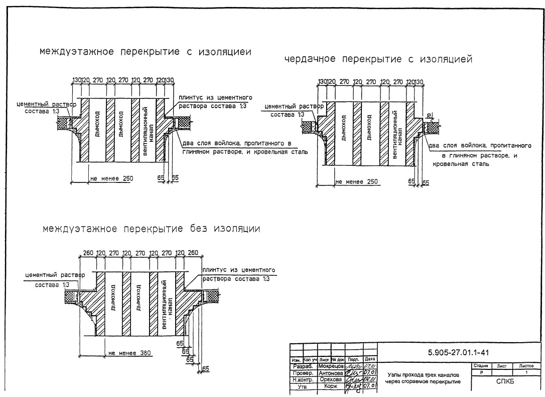
Узлы прохода трех каналов через сгораемое перекрытие
Узлы прохода трех каналов через сгораемое перекрытие
Узлы прохода четырех каналов через сгораемое перекрытие
Узлы прохода четырех каналов через сгораемое перекрытие
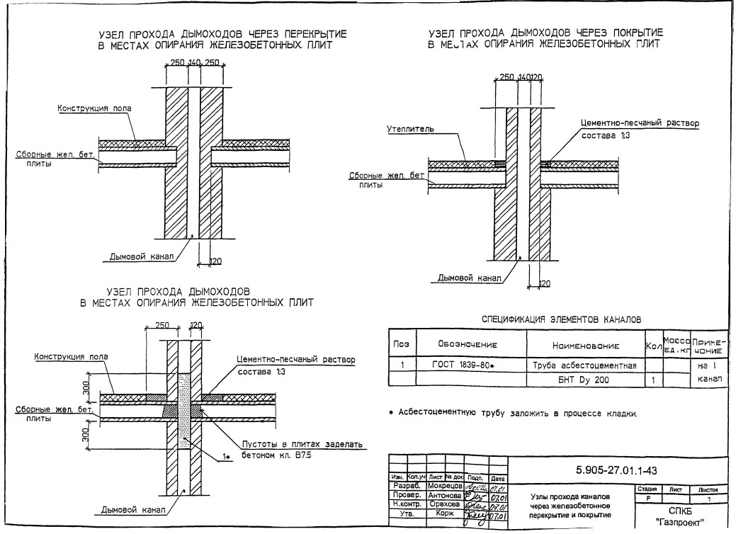
Узлы прохода каналов через железобетонное перекрытие и покрытие
Узлы прохода каналов через железобетонное перекрытие и покрытие
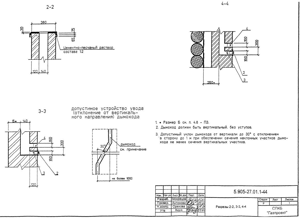
Разрезы 2-2, 3-3, 4-4
Разрезы 2-2, 3-3, 4-4
Узлы прохода каналов через кровлю
Узлы прохода каналов через кровлю
Узел устройства дымовой трубы на два канала при сейсмичности
Узел устройства дымовой трубы на два канала при сейсмичности 7-9 балов
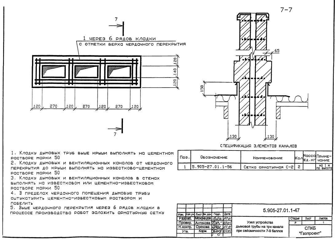
Узел устройства дымовой трубы на три канала при сейсмичности
Узел устройства дымовой трубы на три канала при сейсмичности 7-9 балов
Узел устройства дымовой трубы на четыре канала при сейсмичности
Узел устройства дымовой трубы на четыре канала при сейсмичности 7-9 балов
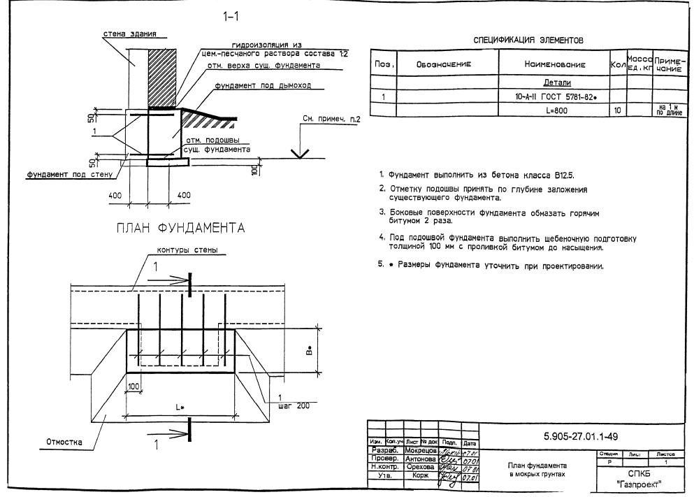
План фундамента в мокрых грунтах
План фундамента в мокрых грунтах
План фундамента в сухих грунтах
План фундамента в сухих грунтах
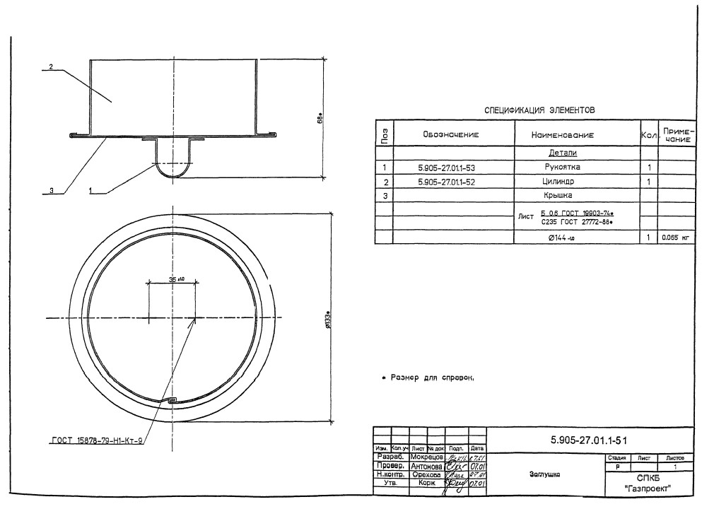
Заглушка
Заглушка
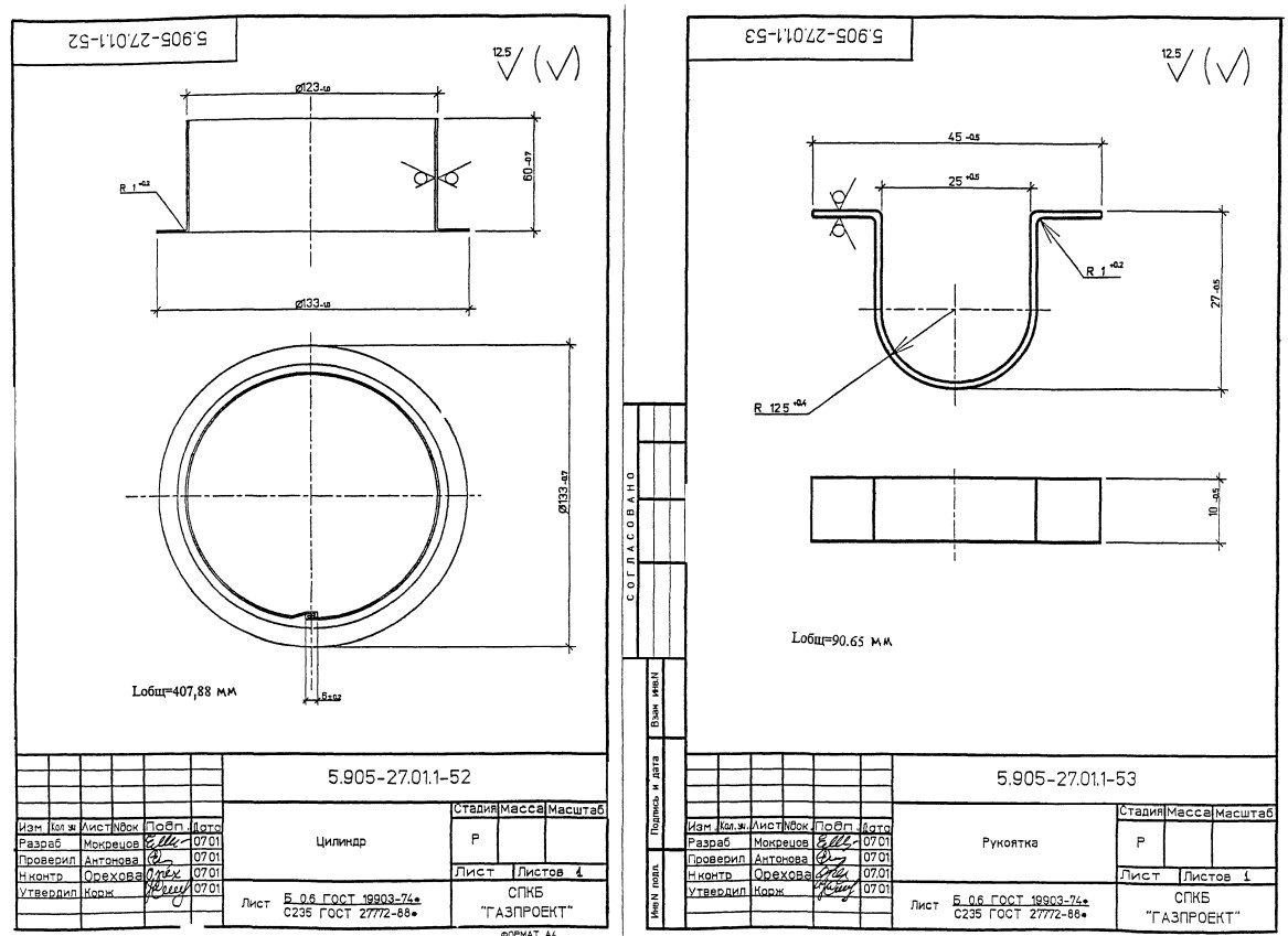
Цилиндр и рукоятка
Цилиндр и рукоятка
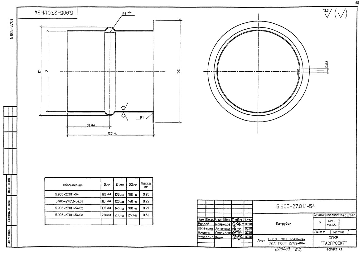
Патрубок
Патрубок
Сетка арматурная
Сетка арматурная
Стержни анкерные
Стержни анкерные